132 M2

1 250 000 PLN

Dowiedz się więcej

Kiekrz 

Szkutnicza

Nowa inwestycja w Kiekrzu przy ul. Szkutniczej to kontynuacja naszej pasji do tworzenia wyjątkowych miejsc do życia, które łączą komfort z innowacyjnym designem, idealnie wpisując się w otoczenie. Projekt Szkutnicza to połączenie nowoczesnej architektury z doskonałą lokalizacją, to osiedle zaprojektowane z myślą o funkcjonalności i estetyce, zapewniające mieszkańcom komfort, spokój i bliskość zarówno natury jak i niezbędnej infrastruktury.

Lokalizacja

Nasza oferta składa się z 10 nowoczesnych domów położonych przy ulicy Szkutniczej w Kiekrzu. Inwestycja zlokalizowana jest w spokojnym i prestiżowym miejscu, nieopodal jeziora Kierskiego, w otulinie dębów brzóz i świerków.

Do inwestycji dojeżdżamy drogą asfaltową. Droga wewnętrzna oraz podjazdy i chodniki wyłożone są POZ-brukiem.

Osiedle zlokalizowane jest w sąsiedztwie domów jednorodzinnych, około 1,5 km od jeziora Kierskiego, 2 km od trasy S11 oraz 2 km od stacji PKP. W odległości około 300 m od inwestycji znajduje się przystanek autobusowy, sklepy spożywcze oraz apteka. Odległość do centrum Poznania wynosi około 15 km.

Elewacje i instalacje

Zewnętrzna, parterowa część budynku wyłożona jest czarnymi płytkami Elastolith oraz wykończona ekskluzywną stalą Corten. Dach pokryty jest blachą "na rąbek". Wszystkie domy mają duże ogrody o powierzchni około 250-300 m2 oraz przestronne garaże. We wszystkich pomieszczeniach zainstalowane jest ogrzewanie podłogowe zasilane pompą ciepła marki Lamborghini. Przygotowane są również instalacje pod światłowód i panele fotowoltaiczne.

Wnętrza

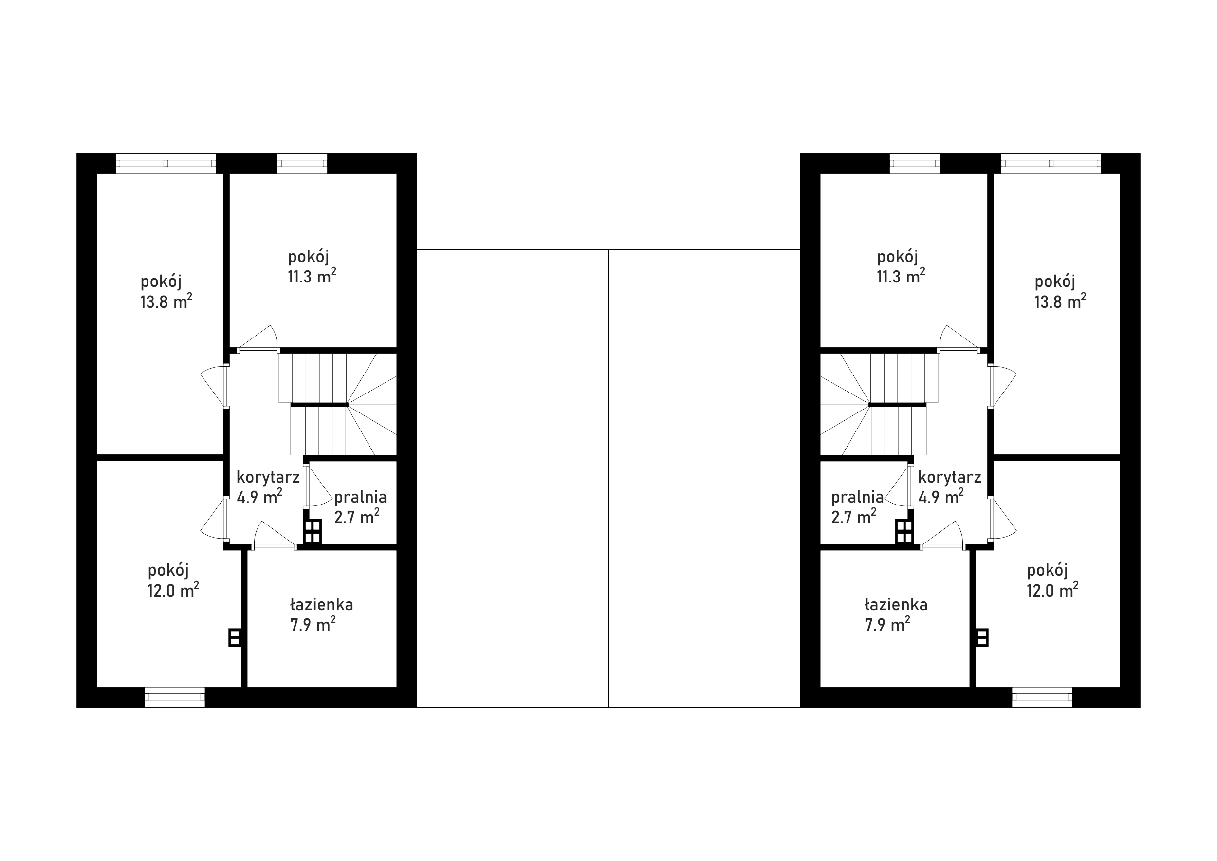
Wejście do domu prowadzi przez przestronny, reprezentacyjny hol. Znajduje się tu miejsce przeznaczone na dużą szafę, lustro oraz drzwi do garażu i mieszkania. Parter składa się z dużego salonu z wyjściem na taras i ogród, kuchni oraz łazienki. Na piętrze mieszczą się trzy przestronne sypialnie, druga łazienka oraz pralnia. Duże panoramiczne okna zapewniają dostęp światła i wizualny kontakt z otaczającą naturą.

Rzut piętra

Rzut parteru

Sprzedaż prowadzi biuro partnerskie Data Nieruchomości

Tel. kontaktowy +48 603 749 940

Powrót

Wymiary lokali

Plan zagospodarowania terenu

Prospekt informacyjny

Chcesz wiedzieć więcej...

Pobierz prospekt informacyjny, Plan zagospodarowania terenu i dokładne wymiary pomieszczeń.

biuro@sotogrande.pl

Skontaktuj się z nami – Twoje nowe mieszkanie czeka!